秩序空间丨退休夫妻的养老房,别的不说是真的舒适惬意呀
项目名称 | 暮年
风格倾向 | 现代极简
暮年
你我暮年,闲坐庭院。
云卷云舒听雨声,
星密星稀赏月影,
花开花落忆江南。
你话往时,我画往事。
愿有岁月可回首,
且以深情共白头。
屏幕前的你,想过自己后的退休生活吗?上述杜甫的《暮年》这首诗传达出了本案屋主夫妻期待的退休后的暮年生活状态。关于未来的养老空间,他们希望那里是安逸清闲、自由自在的。


依循屋主需求与屋型条件发展,设计师在空间整体布局上跳脱出传统配置概念,摒弃繁复,通过简单的材料和宁静的氛围相融合,打造出了一个极简自由的场域。
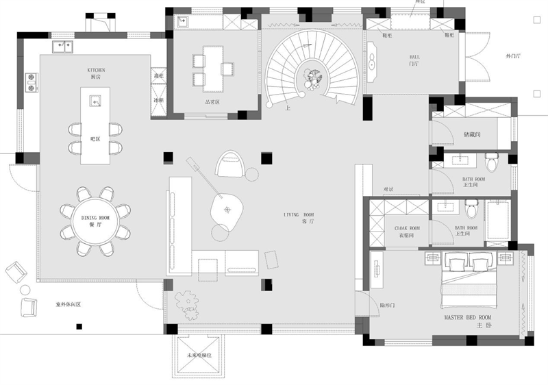
客厅
客厅整体以浅色调为主,给人沉稳静谧的感觉。顶面简练的直线条延伸视觉效果,整体空间敞阔明亮。圆弧形的硬装与软装柔化空间轮廓,既为空间增添浑然天成的柔和感,也保证了安全。

客厅采用通透的落地窗,打通室内与室外的界限,宽境空间毫无保留地拥揽着每一缕阳光,同时屋主足不出户即可私享自然美景。坐或躺在沙发上,晒晒太阳、发发呆或看看风景,自在舒服。

餐厅

客厅与用餐区打通,以餐边矮柜为隔断,让空间更通透。餐区天花打造圆形造型,底下安放一张可容纳8人同时进餐的圆桌,两者相互呼应,寓意团团圆圆。这里是家中最能凝聚亲情与爱意的空间,平时儿女回家或者好友相聚,都能十分自在惬意。
卧室


卧室整体视觉上也依然保持宽敞明亮,做无主灯+氛围灯设计,光源也柔和又具有层次感。地面通铺木地板,放置柔软的床品、沙发或躺椅,温暖闲适感弥漫其间,屋主步入卧室后,可以静享慢慢的休憩时光~
主卫
主卫选择长虹玻璃门弱化视线,保证空间隐私与通透感,又兼具美观性。卫浴间作干湿分离布局,进门左手边是洗手台,右手边是淋浴、如厕区,中间放置浴缸,功能分工明确,提升卫生间的实用性,动线更流畅方便。

整套房子明亮开阔,安静舒适,风格符合夫妻俩的审美,能让退休后的夫妻两个人轻松自在地享受一下晚年生活。
养老房设计,在近两年算是一种“出圈”的存在。不仅仅是老年夫妻,很多年轻人都已经开始规划后半辈子的生活方式,等你老了,你希望生活在一个怎么样的养老空间呢?


收藏
413













公安部备案号 44010602004978号