800㎡极简别墅,纯粹高级的典范 美得上杂志!
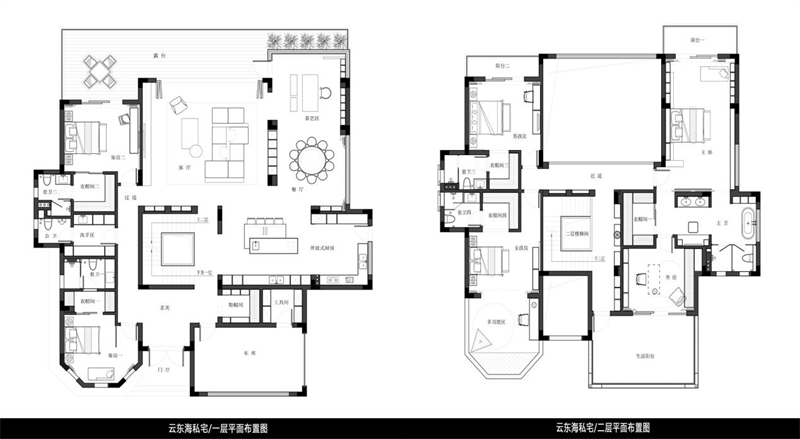
项目名称|云东海私宅
户型结构|独栋别墅
建筑面积|800㎡
设计风格| 现代极简
主要材料|护墙板、柔光砖、金属、艺术涂料
本案为云东海的独栋别墅项目,地下一层,地上二层,建筑面积约800m²。整个空间的设计以纯粹为魂、自由为本、自然为质,通过对空间的叠加与缩放,最大限度地敞开建筑的空间尺度,让空间在起承与连接、自由与开放的交互中,营造出的简约舒适、自然幽静的美学情愫,让人沉浸其中。
玄关过道

踏入室内,一面隔断墙矗立在玄关中间位置,两边保留行走通道,空间隔而不断。隔断墙上悬挂着一幅犹如流星雨倾泻而下的艺术作品,以简洁利落的笔触赋予了玄关星河灿烂的自然意境,创造出空间的仪式感,给来往者提供了视觉上的良好体验。

客厅
客厅整体色调以浅色调为主,以黑色为辅助色,纯粹的色彩模块给人沉稳高级的感觉。挑空的设计纵向拉深了空间感,相互交错的弧形吊灯自由地悬在空中,削弱了空旷感。
空间具有良好的采光与通风系统,超大玻璃落地窗,将自然光线和庭院景色引入室内。

组合模块的灰色沙发可以任意移动摆放,足以满足居住者各种活动需求;沙发背景墙底部嵌入电子壁炉,跃动的火苗带了温热的气息,平衡空间调性,也增强了居家的氛围感。
餐厨空间

餐厨采用开放式的布局,动线规划合理,天花用黑色线条看似简洁,却是设计之于生活,勾勒出了功能区的范围。原木餐桌与岛台自由衔接,轻盈而现代,可兼做休闲吧台、工作区、西厨区,极简元素吊灯和内嵌的灯带散发的光影,既有照明的作用,也营造了温馨而时尚生活气息。
卧室

温润沉稳的色彩搭配,搭配简约的家具造型,与全屋极简的格调相统一。大面积开窗,建立起室内与室外联系,营造空幽深邃、隐心于野的氛围。室内一器一物、室外一山一水和一草一木,皆是岁月最好的陪伴。
茶艺区

茶艺区,白色+原木色系加上黑色线条点缀,整个空间高级而不失温馨。温馨明亮。定制黑色岩板茶几,摆上两条长凳,暇的时候,约上三两好友在这里喝喝茶、看看景,生活好不惬意。
卫浴间
卫浴间空间宽敞开阔,家具暖暖的色调,温润的质感 造出轻松自在氛围。,浴缸临窗而放,可让人尽情地享受日光浴的同时欣赏美景,使身心得到完全的放松。
这套房子设计除去了不必要的繁杂,去芜存菁地保存了内在的自然简单,一半是风景,一半是城。人居于此屋主所向往的一切,尽可在此自由舒展。


收藏
421













公安部备案号 44010602004978号