426㎡独栋别墅,电梯和露台简直羡煞旁人
本案是一个有着自己态度的空间,它的设计遵循着 “恬淡为上,胜而不美”的哲学美思,构、质、色、形、明,五象尽意,整个空间褪去浮华的装饰,呈现出澹雅娴静的外象和心神恬适的内境,有美立于心、油感之觉。
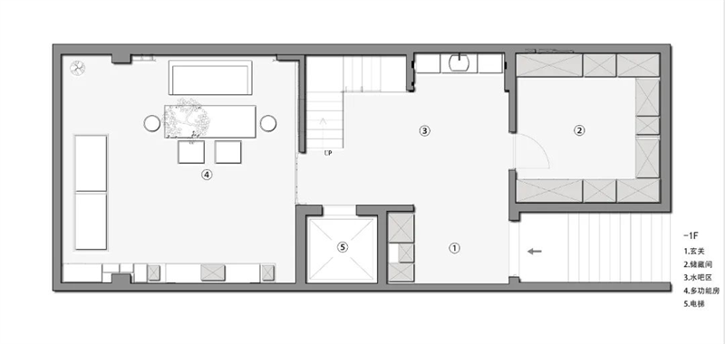
看平面图,你便能知道这个家定是别具一番趣味的。房子户型是长形的,空间的功能区规划、色调和材质等的规划应用,都有着屋主独有的特色和品味,继续往下看吧。
客厅
别墅内部安装电梯,既方便日常出行,给生活带来了更便捷舒适的体验,也彰显出了业主对生活品质的追求。
走出电梯来到客厅,就像进入了一个立体油画的世界。眼前的一切都很有艺术感,油渍感的地面、巧克力色的沙发、黑色的躺椅.....色彩浓郁,质感十足,而吊灯和沙发、茶几的细腿设计赋予了空间轻盈通透感,恰到好处地缓解沉重感,打造出了视觉的趣味性。
水吧区
水吧区以原木和灰色为基调,营造出轻松自在的氛围。定制吧台和壁柜,壁柜可以用来存放各种物品,满足收纳需求。吧台处摆放两把吧椅,休闲和办公均可。
餐厨区域
三餐四季,满载的是家的幸福。餐厅采用深色木质元素、古朴的颜色,给人一种沉稳而不失温暖的感觉,亲好友围坐餐厅,烟火人间,在这样的氛围里,慢慢悠悠细水长流......
厨房选择无主灯设计,采用经典的黑白搭配,打造出一个明亮干净的空间。
家电嵌入墙中,延伸出更多的活动空间,中部区域设置大理石操作台,增加了家人之间的互动,同时也让料理时光变得轻松。
卧室
卧室的设计中,主要以白+原木元素为主。这两种色调本身就带给人一种安宁祥和的氛围,和光照的设计融为一体,让卧室空间更加温馨舒心。卧室还将工作、休憩融为一体,和谐自然,但又处处体贴。
露台
这栋别墅拥有一个大露台,将其封起变成一个阳光房,充当休闲区。这里是家中最闲适放松的区域。周末与朋友相聚,露台盛满欢笑,或是清晨的天光将亮未亮,躺在露台上聆听音乐,热闹也好,独处也罢,皆因这方露台而美好。
这个家里面有着情绪的共鸣与探索,贴近日常生活的规划,是居者精神与生理的理想居所。
本期内容就到这里啦,希望这套案例可以给你带来一些装修灵感,如果你喜欢今天分享的话,可以点赞和收藏!


收藏
396













公安部备案号 44010602004978号